青山第一マンションズ 16階
ぜひ一度見ていただきたい、「青山第一マンションズ」です。港区の賃貸情報なら、03-6419-4118またはinfotokyo@n-asset.comへご連絡ください。
- 賃料
- 155万円
- 間取り
- 3LDK
- 専有面積
- 205.59㎡
- 所在階
- 16階
- 管理費・共益費
- -
- 敷金
- 4ヶ月
- 礼金
- 0ヶ月
-
情報の見方
物件概要
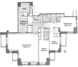
【マンション】 物件番号:98432889 情報更新日:2025年11月05日 次回更新予定日:2025年11月19日所在地 東京都港区赤坂8丁目 交通 間取り/詳細 3LDK
LD 41.7帖/K 14.9帖/洋室 14.8帖/洋室 14.3帖/洋室 10.6帖面積/バルコニー面積 205.59㎡/- 賃料 155万円 管理費・共益費 - 敷金/礼金/保証金 4ヶ月/0ヶ月/- 償却/敷引 -/- 更新料 - 敷金積み増し - 権利金/雑費 -/- 駐車場/月額料金 空有/49,500円 (税込) 全長5,300以下、全幅1,950以下、全高1,550以下、総重量2,200㎏以下 保険加入/料金 有/- 保険名/保険期間 -/- 保証人代行義務/利用料 -/ 初回総賃料の40%~月々1,000円~ 保証会社 オリコ 保証会社詳細 初回総賃料の40%~月々1,000円~ 向き - 築年月(築年数) 2003年 9月 (築22年) 契約期間 定期借家 2年 種別/構造 マンション/鉄骨鉄筋コンクリート 部屋/所在階/階建 1603/ 16階/ 22階建 地下2階 総戸数 - 現況/入居可能日 空家/相談 特優賃 - 取引態様/賃貸区分 仲介/定期借家権 物件番号 98432889 取引条件の有効期限 2025年11月19日 設備条件 - 2人入居可
- 法人可
- ファミリー向け
- 室内洗濯機置場
- 公営水道
- 公共下水
- エレベーター
- 駐輪場
- 敷地内ごみ置き場
- IHクッキングヒーター
- コンロ2口以上
- 冷蔵庫あり
- 食器洗い乾燥機
- システムキッチン
- 対面式キッチン
- ディスポーザー
- コンロ3口
- カウンターキッチン
- バス・トイレ別
- 浴室乾燥機
- 温水洗浄便座
- 洗面台
- トイレ2ヶ所
- シャワー
- 独立洗面台
- エアコン
- ウォークインクロゼット
- ウォークインシューズクロゼット
- シューズボックス
- BS
- CATV
- インターネット対応
- オートロック
- TVモニタ付インターホン
- 宅配ボックス
- 防犯カメラ
- 24時間有人管理
- フロントサービス
- 24時間ゴミ出し可
- コンシェルジュサービス
- エアコン2台
- エアコン3台
- エアコン4台
- エアコン全室
- 洗濯機
- 乾燥機
条件(その他) 給湯料:2万5,300円(月額) 空調料:4万9,500円(月額) トランクルーム:7,700円(月額) 取扱会社 - 株式会社エヌアセットTOKYO
- 東京都港区南青山5丁目11-1 8F
- TEL:03-6419-4118
- 東京都知事 (4) 第90981号
※地図上に表示される物件の位置は付近住所に所在することを表すものであり、実際の物件所在地とは異なる場合がございます。
物件お問い合わせ
青山第一マンションズの他の空室
所在階 間取り 賃料 9階 1LDK 80万円 この物件を見た方へのお勧め物件
- アトラス麻布台
- 85万円 2LDK/88.67㎡
- 東京都港区麻布台3丁目
- 南北線「麻布十番」駅 徒歩6分
- 麻布第一マンションズ
- 83万円 2LDK/95.55㎡
- 東京都港区六本木4丁目
- 日比谷線「六本木」駅 徒歩6分
- Brillia高輪REFIR
- 80万円 3LDK/88.45㎡
- 東京都港区高輪4丁目
- 山手線「品川」駅 徒歩10分
- ザ・パークハウス三田ガーデン タワー棟
- 78万円 2LDK/74.57㎡
- 東京都港区三田5丁目
- 南北線「白金高輪」駅 徒歩8分
- サワタカビル
- 78万円 5LDK/163.71㎡
- 東京都港区西麻布1丁目
- 日比谷線「六本木」駅 徒歩7分
























